Til Salgs
Enebolig i kjede
Benestadheia 60
4638 Kristiansand
Benestadheia 60
4638 Kristiansand
Pris
6 990 000,-
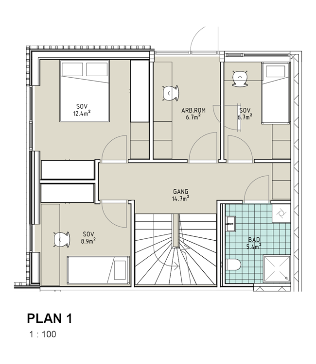
BRA
166 m²
Tomt
242 m²
Antall etasjer
3

Innholdsrike familiebolig på Drangsvann. Huset ligger øverst i nyere byggefelt - vestvendt og meget solrikt - barnevennlig i blindvei - utsikt- naturskjønne omgivelser og nydelig turterreng i umiddelbar nærhet - leveres nøkkelferdig og med garasje.

Boligene leveres med en gjennomgående god standard:

Vegg/himling: Gips leveres skjøt- og flekksparklet og malt i klasse 2, hvit. Se romskjema.
Gulv: Gulv leveres som 1-stav gulv, lys eik. Fliser i enkelte rom iht. romskjema.
Listverk: Klassisk hvite trelister rundt dører og langs gulv.
Listefri overgang mot tak og vinduer. Synlige stiftehull etter montasje.
Innerdører: Hvite, slette innerdører leveres med standard dørhåndtak i stål.
Trapp: Trapp leveres hvitmalt i farge klassisk hvit med åpne trinn. Rekke med rundspiler i tre.
Kjøkken: Kjøkken fra Strai Kjøkken til kr. 100.000,- veiledende pris, eks. hvitevarer inkl. frakt, montasje og mva er inkludert. Uttrekkspris er kr. 70.000,-.
Oppvarming: Elektrisk oppvarming med varmekabler iflg. romskjema. Bolig er klargjort med pipegjennomføring igjennom tak, for fremtidig montering av ildsted. Varmekilder utover dette inngår ikke i leveransen.
Ventilasjon: Balansert ventilasjon med varmegjenvinning.

Se for øvrig byggebeskrivelse vedlagt i prospekt.

Prospekt Meld din interesse
Logo Eiendomsmegler Norge Logo Eiendomsmegler Norge
Tor Even Kristensen
Prosjektmegler MNEF
48 25 20 12
Logo BOH Logo BOH
Oddleif Henriksen
90 76 06 46
Logo BOH Bygg AS