Benestadsløyfen 21
4638 Kristiansand
4638 Kristiansand
Pris
5 790 000,-
Antall etasjer
2
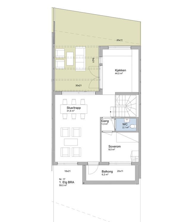
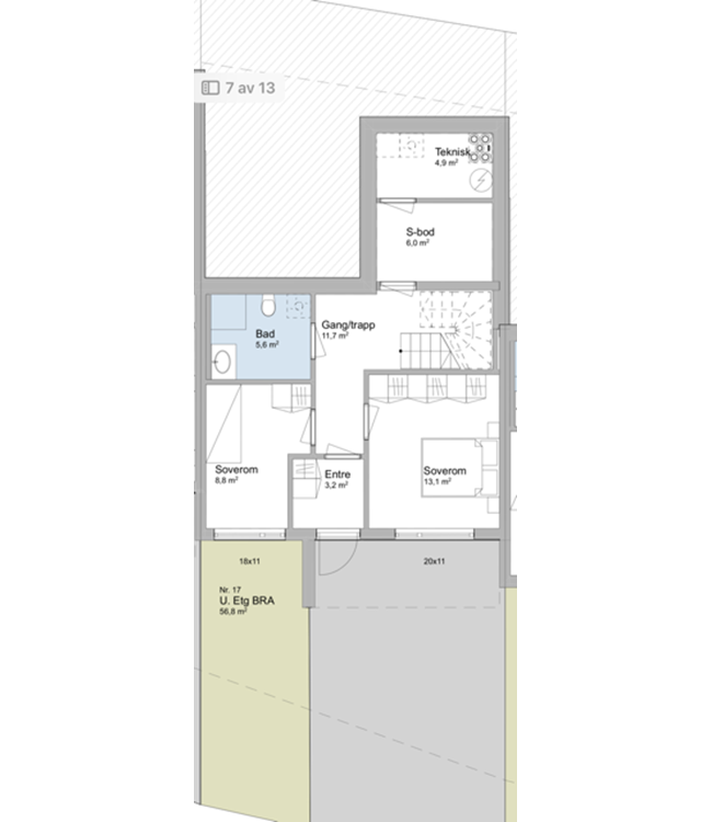
Boligen ligger på toppen av Drangsvann og har flott tomt med utsikt, masse sol og park/lekeplass ved siden av.
Leveres med ferdig uteområdet, pergola og veranda. Boligen har 3 soverom og det er parkering utenfor boligen.
Ta kontakt med Oddleif Henriksen for mer informasjon
Mobil 907 60 646
Mail: Oddleif@boh.no
×


