4638 Kristiansand
Vi har gleden av å presentere Sofiero 11, tegnet i felleskap av arkitektene Øyvind Flatnes og Knut Ove Kristiansen. Eneboligen ligger på en fin liten høyde og har sol fra morgen til kveld. Det bygges på flat selveier tomt som grenser til et felles tun med lekeplass.
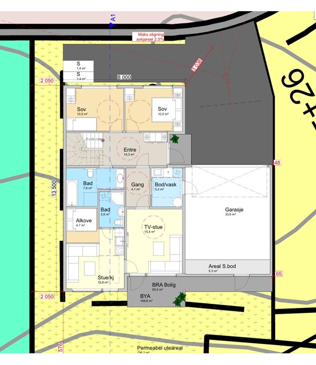
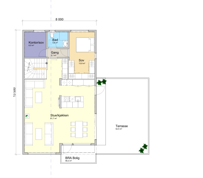
Dette er svært innholdsrike boliger, tegnet med øye for å best mulig utnytte tilgjengelig areal(BRA 230m2), samt uteplasser inne og ute tegnet med tanke på sol og opphold.
Vi er stolte av resultatet og gleder oss å ta fatt på dette nydelige prosjektet, beliggende midt mellom Langetjønn, Rundetjønn og Drangsvann. Snaue 200-300meter fra Høvågveien en liten kilometer fra Rona.
Nøkkelferdig leveranse inn og ute
Tomten er 364m2. På lik linje med selve boligen, gjøre vi uteareal ferdig. Se prospekt og utenomhus planer i prospekt for gode illustrasjoner på leveranser. Her leveres både belegningsstein, kantstein, plener, hekker, plattinger og så videre. Her kan du flytte rett inn uten å tenke på gjenstående arbeider.
Inne leveres boligene ferdig med vår velkjente standard. Vi søker å tilby en tidsriktig leveranse som ikke skal kreve at du bruker penger på oppkjøp. Prospekt vil gi deg god innsikt, men vi leverer selvsagt parkett gulver, pipe og, belysning i alle rom, også mye downligts, utvendig belysning, god mengde kjøkken fra Strai kjøkken, lekre bader med dusjvegger og nedsenket gulv, lydtiltak mot hybel, lekre eikedetaljer på fasade, vinduer med aluminiums beslag og mye mye mer! Be om prospekt og du vil lese til minste detalj.
Oppstart, ferdigstillelse og betaling
Muren er støpt og vi kan starte på bygging ganske umiddelbart etter salg. Byggetid ca 10mnd.
Det er ingen betaling før boligen er ferdigstilt. Her sparer du store penger, husk å fortelle banken din dette dersom du vurderer kjøp. Dette er et ganske enestående tilbud.
Be om en prat og visning av tomt:
Kjørevei inn til tomtene er asfaltert, du kan med enkelhet kjøre helt frem. Du vet du er kommet riktig når du ser et stort byggeplasskilt merket med Sofiero.
Hybel klargjort for utleie er inkludert i pris!
Kontakt Roger Aamodt for en boligprat og visning, mobil 911 89064.

